Applications
Solutions CTA sur mesure
Centrales de traitement d’air sur mesure
Silencieuses, efficaces, fiables, durables
Carrier se spécialise dans la conception et la fabrication d’équipements de traitement d’air sur mesure, ultra-silencieux et écoénergétiques, pour des applications commerciales et industrielles.
Applications des CTA personnalisés
Nos centrales de traitement d’air sur mesure répondent aux exigences uniques de chaque projet. Des unités intérieures à la récupération d’énergie et aux systèmes de filtration avancés, nous couvrons toutes les applications.
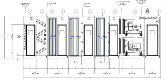
Gamme de produits
- CTA sur mesure – Couloir technique
- Unités intérieures de CTA sur mesure
- Économies d’énergie
- Non peint
- Maintenance facilitée
- Récupération d’énergie sur mesure
- Construction lavable (Wash-Down)
- Construction démontable (Knock-Down)
- Sections modulaires
- CTA industriel sur mesure
- Construction hygiénique
- Filtration particulaire / gazeuse / aérosols infectieux
- VRF / DX + ACCU
Support et formation
- Déjeuners-conférences techniques (Engineering Lunch / Learn)
- Ingénieurs-conseils
- Équipes de vente
- Entrepreneurs design / construction
- Événements clients
- Revue des spécifications
- AutoCad / REVIT
- Formation sur logiciels de conception
Conception de CTA personnalisés
Certifications
Construit pour respecter les normes industrielles les plus strictes en matière de sécurité électrique, résistance au feu et à la fumée, intégrité structurelle, résistance à la corrosion et durabilité à long terme.
- ETL / UL 1995 / NEC
- UL 508A
- NFPA 255 (FUMÉE / FLAMME)
- IBC 2015 / ASCE-7-10
- OSP – 0533-10
- ASTM B117 (brouillard salin, min. 2000 heures)
Test de vérification
Chaque unité peut être testée en usine pour vérifier l’étanchéité à l’air, l’intégrité structurelle, le débit d’air, le niveau sonore, l’efficacité de filtration, la résistance aux intempéries et l’étanchéité aux lavages.
- Fuites d’air (+/- 15” @ <0,5 %)
- Déflexion du caisson / structure (L/240)
- Débit d’air (Pression statique externe / points de fonctionnement)
- Son ISO – 9614 (Méthode de l’intensité sonore)
- Test des filtres HEPA / intégrité du logement
- Test pluie UL (étanchéité à l’eau du caisson)
- Bac de récupération / lavage – intégrité de l’étanchéité

Soins de santé
Air propre et contrôlé avec précision

Aéroports
Une qualité de l’air intérieur sécuritaire et efficace

Centres de données
Solutions aérauliques sur mesure

Musées et archives
Qualité de l’air intérieur rentable

Collèges et universités
Ventilation silencieuse et écoénergétique